











12155 Metro Parkway #4 12155 Metro Parkway, Fort Myers, FL 33966
Office
Mixed Use
Property Description
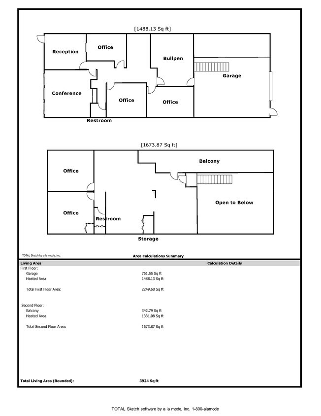
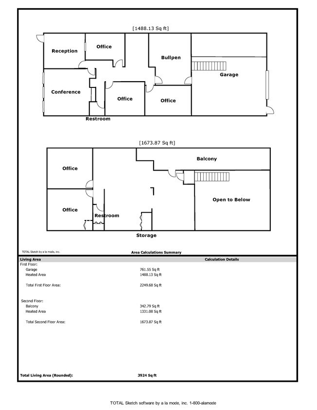
Great exposure! 4002 square feet of flex space available for lease or for sale. 1st floor has 1549 square feet of office space. Vinyl plank tile, upgraded restroom and kitchenette plus 900 square feet of warehouse with 14 foot ground level doors and 3 parking spaces in the rear. 2nd floor has 1549 square feet with 2 offices/and a workroom/creative office/conference room/training facility upstairs, kitchette and 2nd restroom.
Area Description
This unit is directly on busy and desirable Metro Parkway!
Highlights
Vinyl plank flooring on the 1st floor! Updated fixtures in kitchenette and restrooms. Office furniture is included.
Full Address: 12155 Metro Parkway, Fort Myers, FL 33966
Listing Type: FOR SALE
Status: Active
Building Class: B
Zoning: IL
Region: S-SE
County: Lee County
Closest Cross Streets: Crystal
Use Type: Industrial
Property ID: 4086955
Has Sewer: Yes
Has Water: Yes
Has Electric: Yes
Has Waste: Yes
Power: Yes
Heating: Yes
Cooling: Yes
Grade Docks: Yes
Landscape: Yes
Traffic Count: 25000 VPD
Clearance Height: 16
Building Construction: cement block
Roof: Gable Hip
Building Sf: 4002
Parcel Num: 18-45-25-01-12155.04A0
Number Units: 1
Year Built: 1985
Year Renovation: 2023
Number Parking Spaces: 7
Tenancy Type: Single-Tenant
Vinyl plank flooring on the 1st floor! Updated fixtures in kitchenette and restrooms. Office furniture is included.