122 N Main St 122 North Main Street, Washington, IL 61571
Property Description
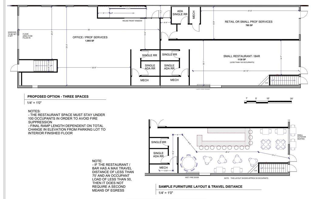
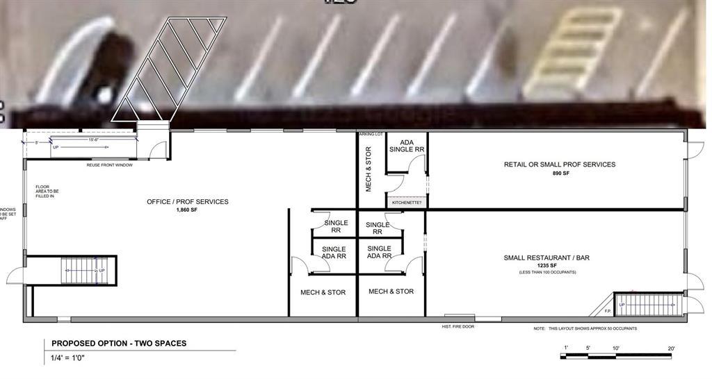
785-890 SF available for the development of a small retail or service suite (see images of potential floorplans). Prime retail/office space just one block north of the Washington Downtown Square. This property is ready to be leased and built out for your business to join the busy Downtown Square community. The facade was recently updated with beautiful brick, new awnings, doors and windows. This building was formerly a Bowling Alley and still has the vintage floor. It was most recently a spirit wear store. The building also has a full basement and 200 amp electrical services. The 4080 SF space can be subdivided in half, or as approximately 1800-2040 SF office (rear), 785-890 SF retail/service suite (front), and 1130-1870SF bar/restaurant (see images of potential floorplans in photos).
Full Address: 122 North Main Street, Washington, IL 61571
Listing Type: FOR LEASE
Status: Active
Zoning: C-2
Region: M-EN
County: Tazewell County
Property ID: 4092442
Building Sf: 4,080
Parcel Num: 02-02-23-207-016
Number Units: 3
Number Buildings: 1
