2030 Terry Street 2030 Terry Street, Longmont, CO 80501
Office Building
Property Description
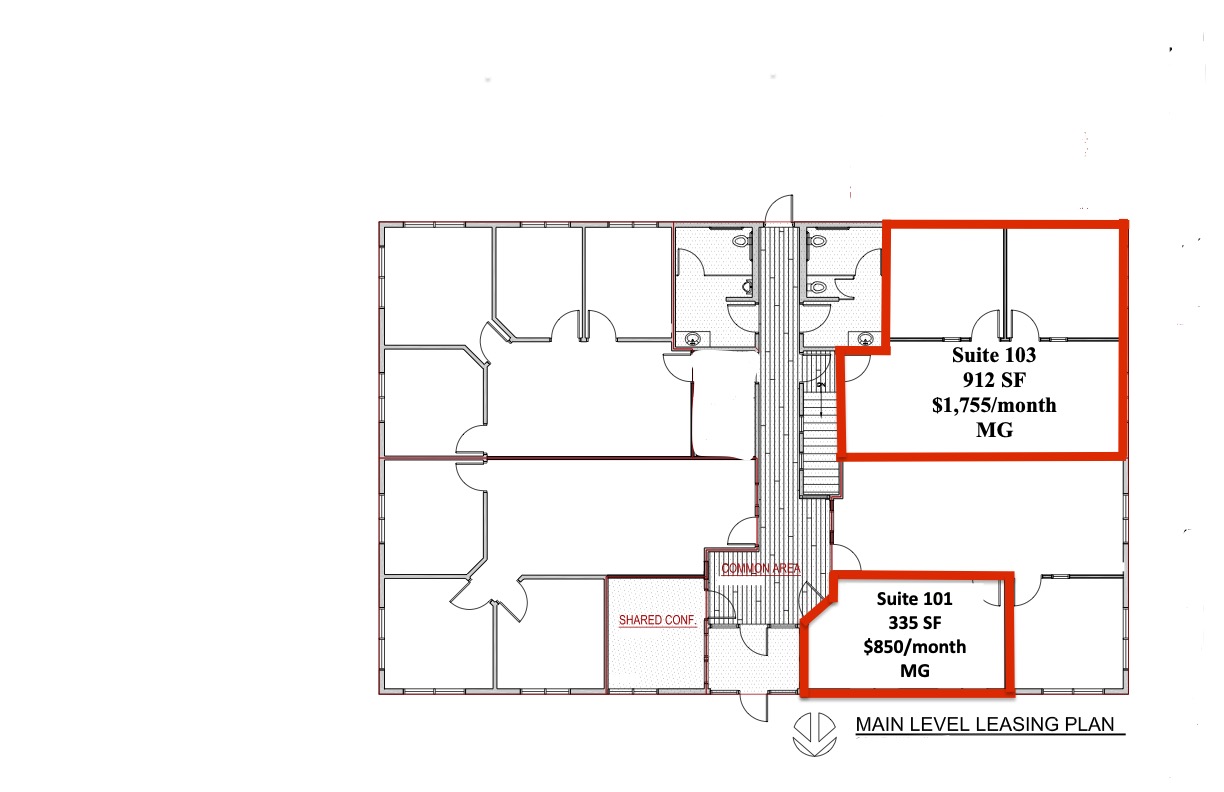
Very desirable office space available in North Longmont. Situated in an excellent location with easy access and excellent parking for clientele. Suite 103 is 912 square feet and Suite 101 is 335 square feet. Close to restaurants, shopping, banking and more. All leases are gross leases and include all utilities. Use of the conference room is included in the monthly rent and available to all tenants. Additionally, there is a large meeting room with a kitchen, and additional various sizes of storage spaces in the basement are available for lease to tenants.
Area Description
Located in Northeast Longmont on the corner of 20th and Terry
Full Address: 2030 Terry Street, Longmont, CO 80501
Listing Type: FOR LEASE
Status: Active
Building Class: B
Zoning: Mixed-Use Corridor (MU-C)
Region: W-WM
County: Boulder County
Property ID: 4033712
Building Sf: 8,364
Parcel Num: 1205273-35-002
