3731 Colby Ave 3731 Colby Avenue, Everett, WA 98201
Property Description
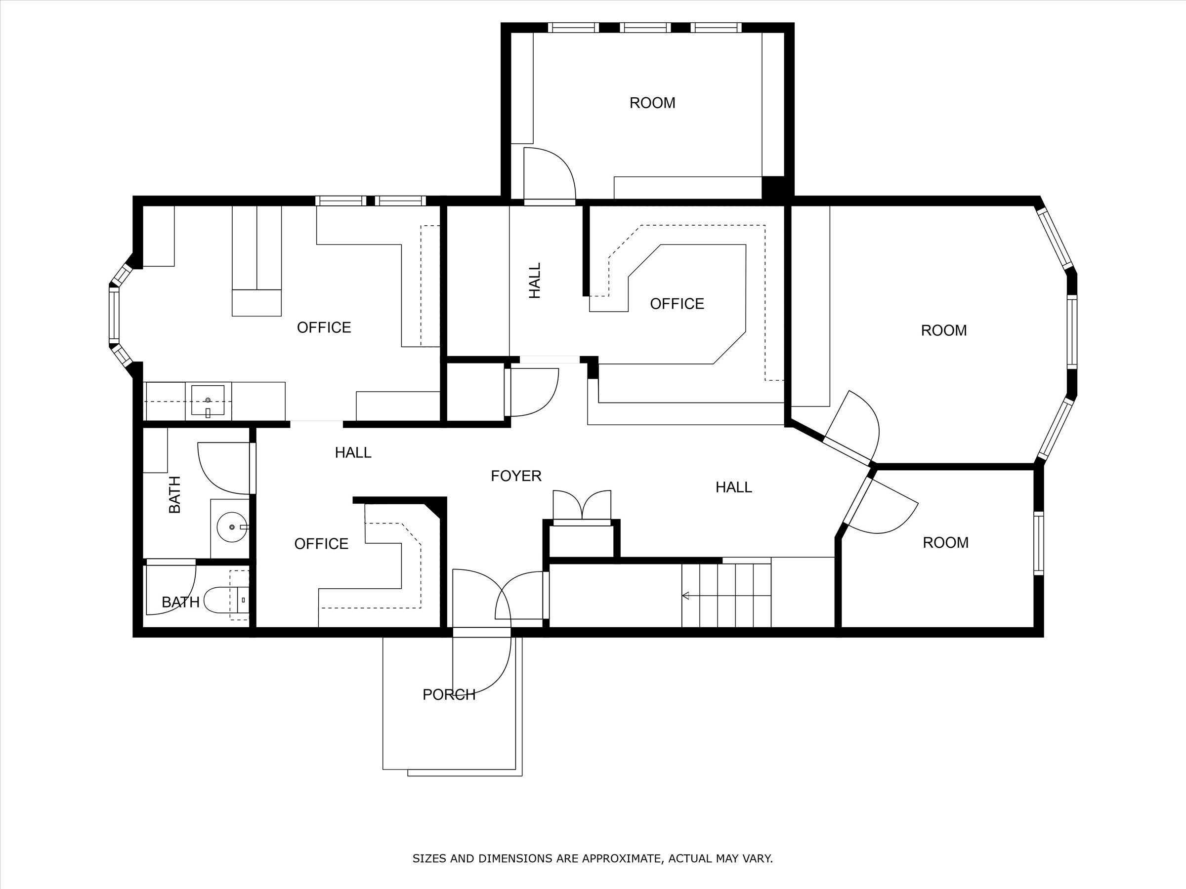
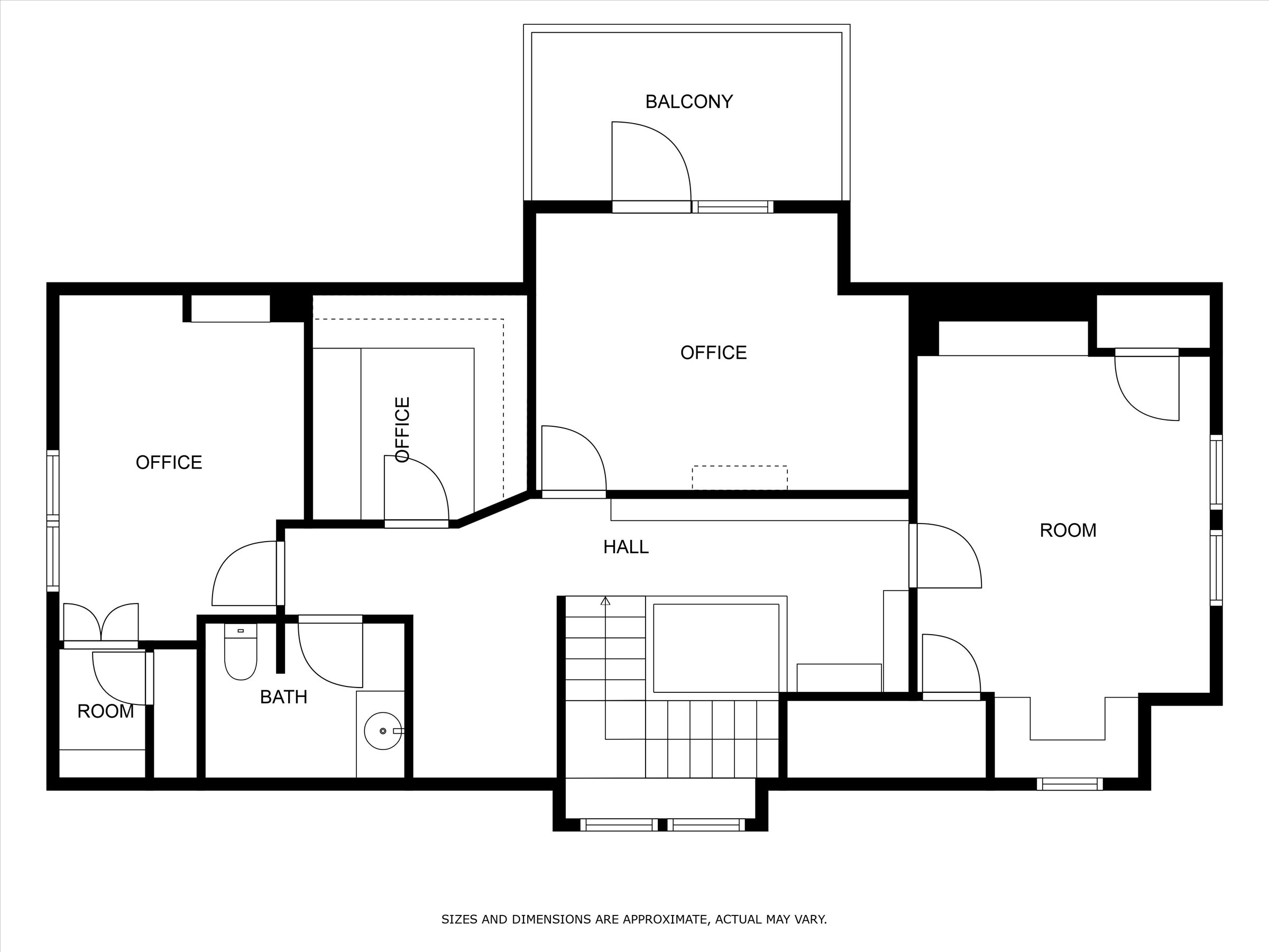
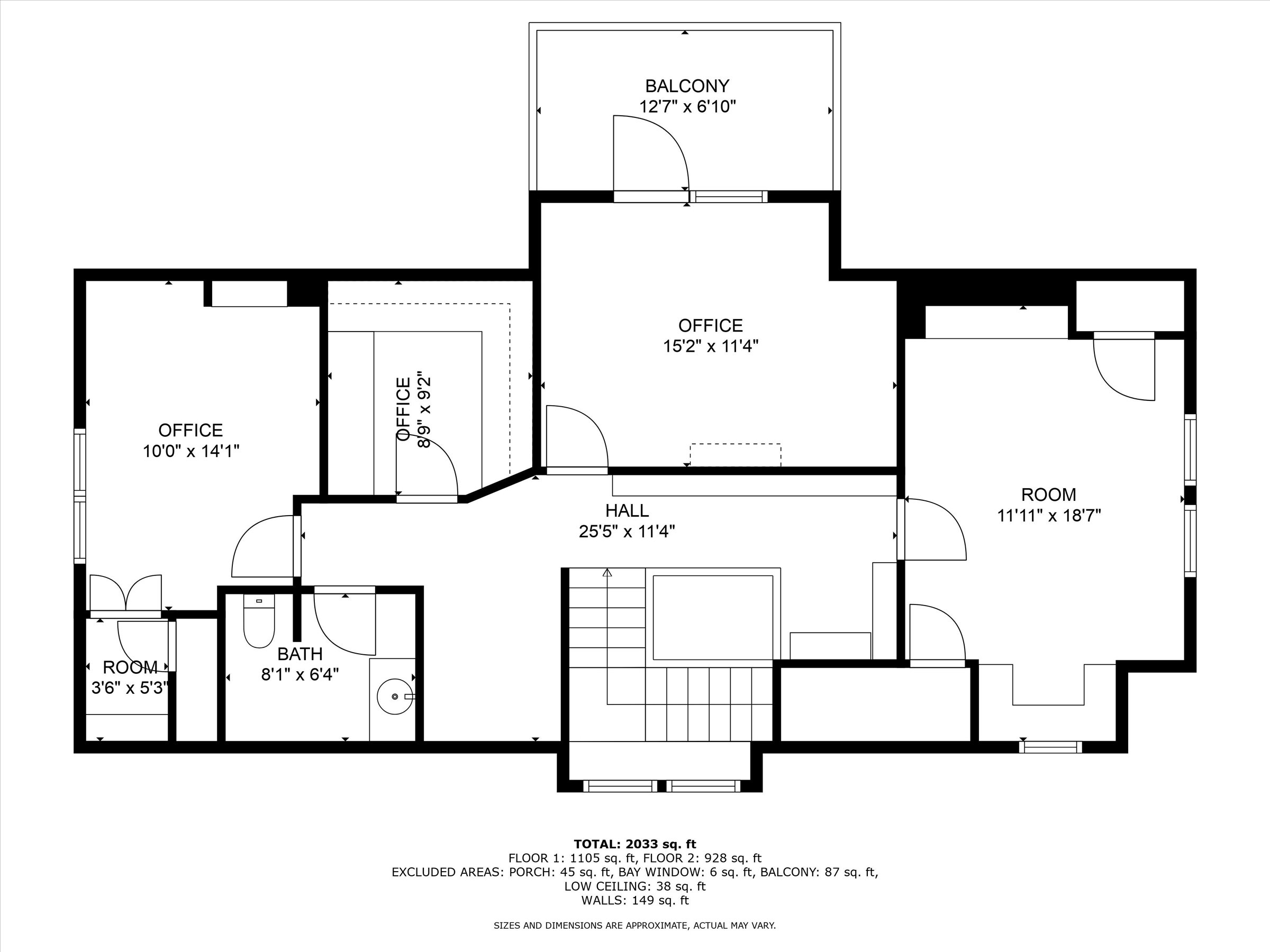
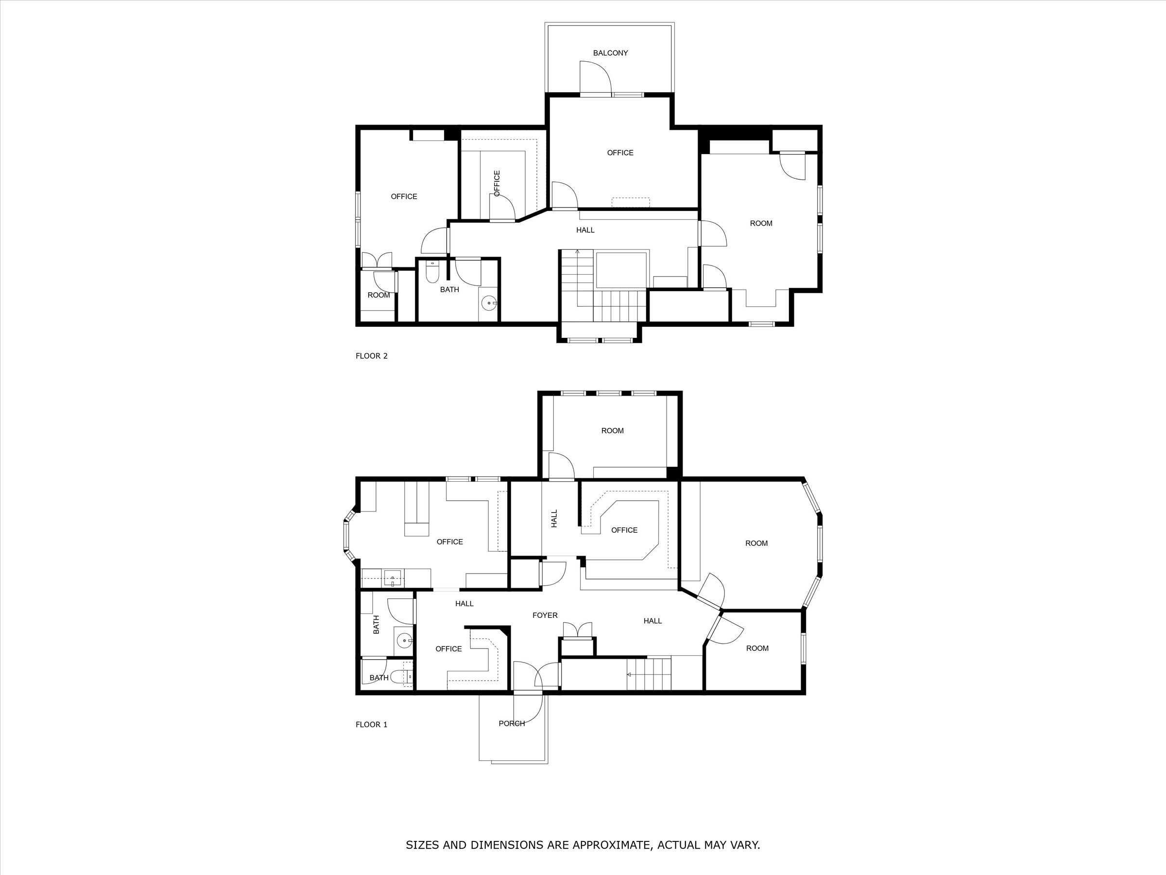
This 2,105 sq ft commercial space offers outstanding visibility on Everett’s busy Colby Avenue, with nearly 11,000 cars passing in each direction every day. Zoned UR-7, the property accommodates a wide range of potential uses, from retail to professional services to creative concepts (buyer to verify). The site features strong street frontage, prominent signage opportunities, and on-site parking for customers and staff. Located near the Everett Clinic and other established businesses, it benefits from a steady flow of both vehicle and foot traffic in a vibrant mixed-use corridor. The flexible layout is ready for tenant improvements, making it an ideal blank canvas for your business vision.
Area Description
Located in Everett’s lively Port Gardner district, 3731 Colby Avenue offers exceptional visibility and accessibility along a high-traffic mixed-use corridor. Just blocks from the Everett Clinic and surrounded by a dynamic mix of offices, local businesses, and residential neighborhoods, the site benefits from a WalkScore of 78 and impressive daily exposure. Supported by UR-7 zoning, this adaptable 2,105 sq ft space on a 5,663 sq ft parcel is a rare blank-canvas opportunity in a community supported by robust economic sectors—from aerospace to retail—making it ideal for a variety of commercial or creative uses.
Highlights
-
Size & Layout: 2,105 sq ft of adaptable space ready for retail, office, or specialty uses.
-
Zoning: UR-7 zoning supports a wide range of commercial and mixed-use concepts (tenant to verify).
-
Visibility: Nearly 11,000 cars pass in each direction daily on Colby Avenue, with strong street frontage and prominent signage opportunities.
-
Accessibility: On-site parking and convenient access for customers and staff.
-
Location: Near the Everett Clinic and other established businesses, benefiting from strong name recognition and steady customer flow.
-
Opportunity: Flexible interior allows for tenant improvements to match your business vision.
Full Address: 3731 Colby Avenue, Everett, WA 98201
Listing Type: FOR LEASE
Status: Active
Zoning: UR-7
Region: W-WP
County: Snohomish County
Property ID: 4084538
Heating: Yes
Cooling: Yes
Traffic Count: +/- 22,000 VPD
Max Contiguous: 2105
Building Sf: 2105
Parcel Num: 00451402501400
Number Buildings: 1
Free Standing: Yes
Tenancy Type: Single-Tenant
Size & Layout: 2,105 sq ft of adaptable space ready for retail, office, or specialty uses. Zoning: UR-7 zoning supports a wide range of commercial and mixed-use concepts (tenant to verify). Visibility: Nearly 11,000 cars pass in each direction daily on Colby Avenue, with strong street frontage and prominent signage opportunities. Accessibility: On-site parking and convenient access for customers and staff. Location: Near the Everett Clinic and other established businesses, benefiting from strong name recognition and steady customer flow. Opportunity: Flexible interior allows for tenant improvements to match your business vision.
