Shovel-Ready Development Site in Delta Charter Township 8128 Redwood Boulevard, Lansing, MI 48917
Special Purpose / Other
Vacant Land
Property Description
Shovel-Ready Development Site in Delta Charter Township-
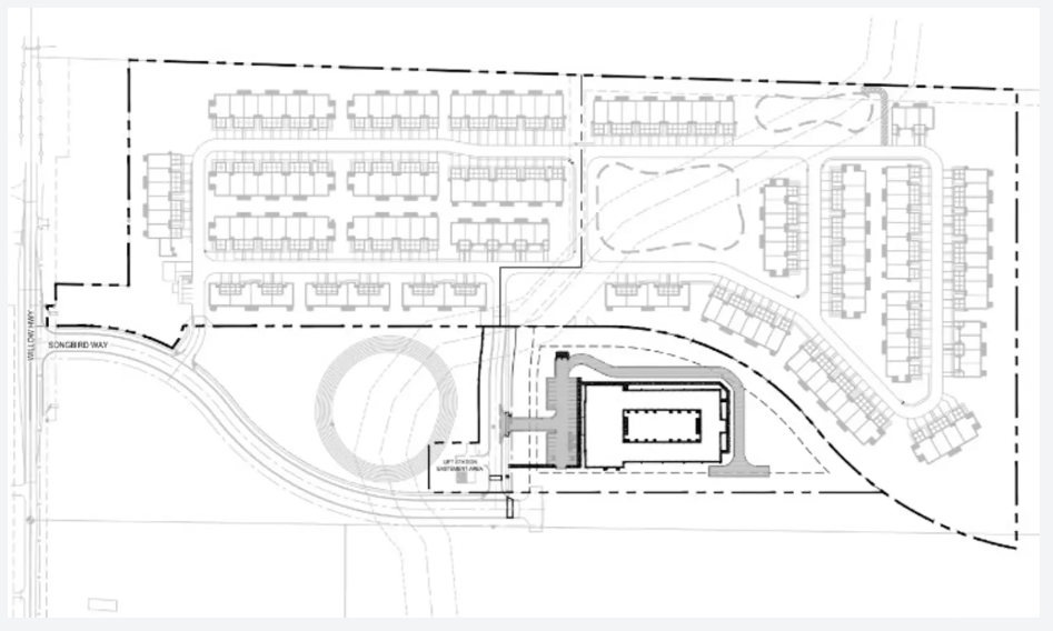
Unlock the potential of this prime 4.4-acre (gross) / 4.95-acre (surveyed) development site, perfectly positioned in one of Lansing’s most sought-after residential and commercial growth corridors. Whether you are looking to execute a high-demand senior care facility or pivot to a profitable multi-family residential project, this parcel is primed for immediate action.
HIGHLIGHTS
- Strategic Location: Situated in Delta Charter Township, just 10 minutes from downtown Lansing and minutes from I-96, 69 and 496 expressways, this site offers the perfect blend of suburban tranquility and urban accessibility.
- Current Zoning: RM (Multiple Family Residential) – Designed to serve as a high-value transition zone.
- Pre-Approved Potential: The site has a history of approval for a 60-bed Adult Foster Care Facility. Complete civil engineering plans by and established local Architecture firm, site sketches, and soil erosion protocols are already drafted, significantly reducing your pre-development timeline.
- High Value-Add: Tax Year 2027 values are already established with a State Equalized Value (SEV) of $323,400, reflecting the township's high valuation of this "Commercial-Vacant" land.
DEVELOPMENT VERSATILITY
While currently tailored for Maple Hill Adult Foster Care, the RM Zoning allows for a diverse range of profitable ventures:
- Multi-Family Duplexes/Townhomes: Proposed density allows for up to 23 units (approx. 5.23 units per acre), ideal for a "Redwood-style" luxury rental community.
- Senior Living & Congregate Care: Ideally suited for "Age-In-Place" housing or a private convalescent home.
- Institutional Use: Potential for child daycare centers, religious institutions, or professional office spaces with Special Land Use approval.
SITE SPECIFICATIONS
- Parcel ID: 040-009-200-048-00
- Jurisdiction: Delta Charter Township (Eaton County)
- School District: Grand Ledge Public Schools
- Site Readiness: Earth disturbance plans for 2.8 acres already engineered; utility contacts and jurisdictional reviews (Water, Sewer, Soil Erosion) are on file.
- Setting: Beautifully landscaped area near the established Redwood Delta Township community, featuring green spaces and mature surroundings.
Secure your footprint in the West Lansing submarket today
Site is priced competitively for a developer who wants to bypass the "blank slate" phase. The heavy lifting of civil engineering and site planning has been initiated, offering a clear path to permitting and construction.
Full Address: 8128 Redwood Boulevard, Lansing, MI 48917
Listing Type: FOR SALE
Status: Active
Region: M-EN
County: Eaton County
Property ID: 4106751
Parcel Num: 04000920004800
