4002 sq ft Extra-Large Office Space with Warehouse
Office
Special Purpose / Other
Property Description
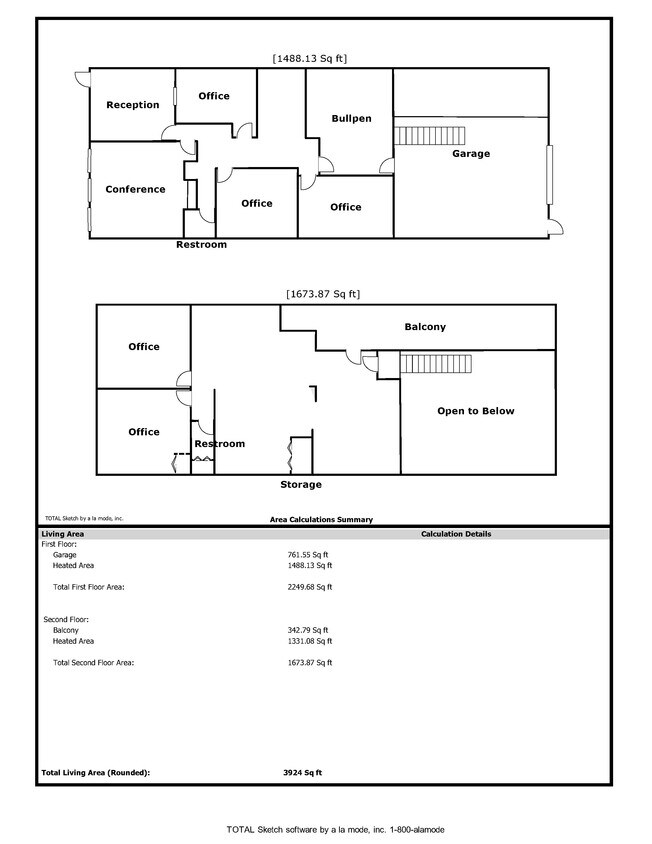
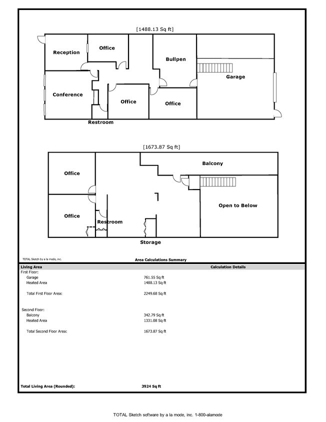
4002 square feet of large Professional Offices/suites with warehouse available for lease or for sale. 1st floor has 1549 square feet of office space, lobby, multiple offices and conference rooms, kitchenette, two restrooms with shower. Vinyl plank tile plus 900 square feet of warehouse with 14 foot ground level doors and 7++ parking spaces. 2nd floor two offices/workroom/conference room/training facility, kitchette and 2nd restroom. Office Furniture is included. Approximately $5915 per month.
Area Description
This unit is directly on busy and desirable Metro Parkway!
Highlights
Vinyl plank flooring on the 1st floor! Updated fixtures in kitchenette and restrooms. Office furniture is included.
Listing Type: FOR LEASE
Status: Active
Building Class: B
Zoning: IL
Region: S-SE
County: Lee County
Closest Cross Streets: Crystal
Use Type: Industrial
Property ID: 4087158
Has Water: Yes
Has Electric: Yes
Power: Yes
Heating: Yes
Cooling: Yes
Grade Docks: Yes
Landscape: Yes
Traffic Count: 25000 VPD
Clearance Height: 16
Max Contiguous: 4,002
Building Construction: cement block
Roof: Gable Hip
Building Sf: 4,002
Parcel Num: 18-45-25-01-12155.04A0
Number Units: 1
Year Built: 1985
Year Renovation: 2023
Number Parking Spaces: 7
Tenancy Type: Multi-Tenant
Vinyl plank flooring on the 1st floor! Updated fixtures in kitchenette and restrooms. Office furniture is included.
